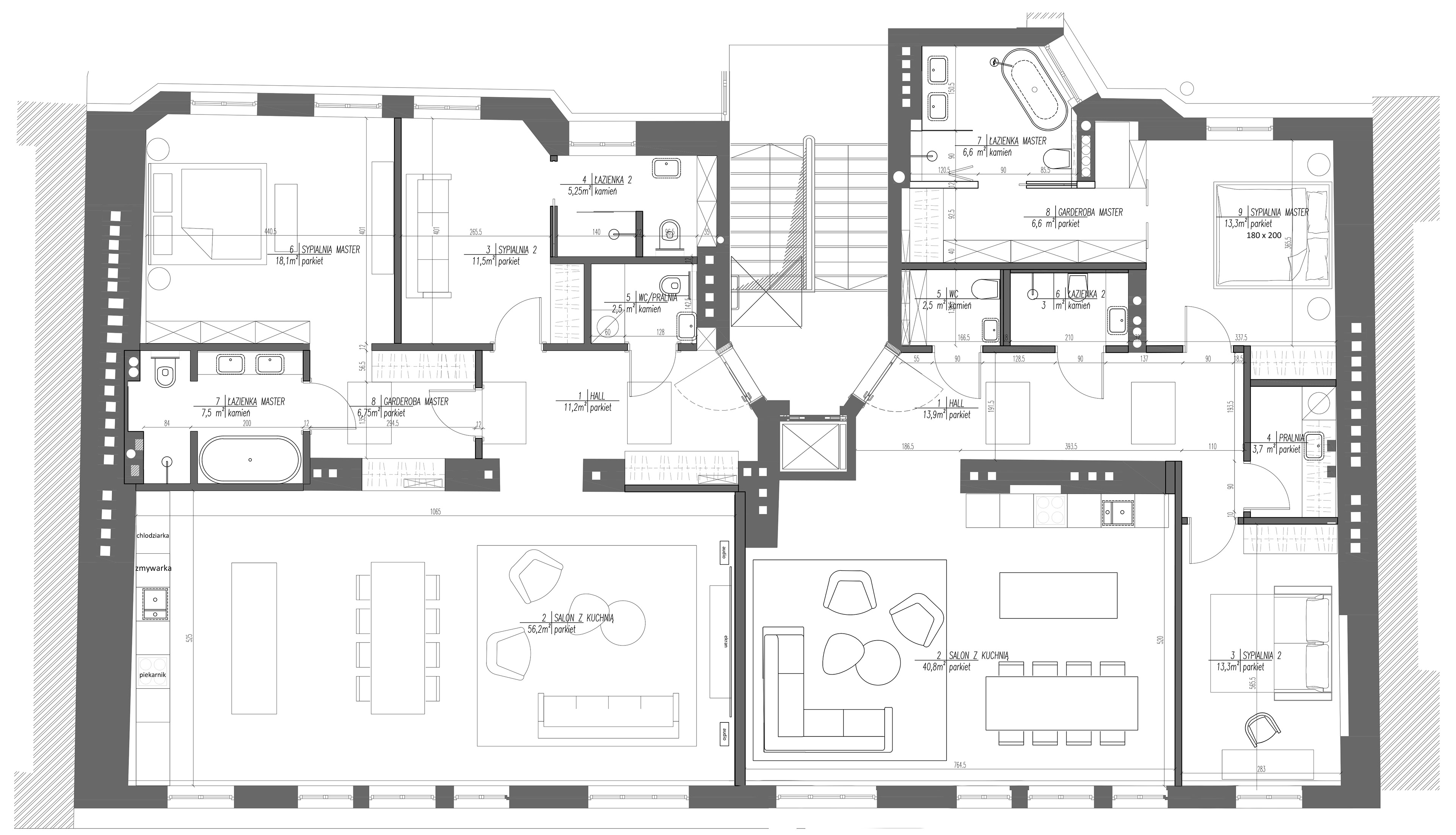
PROJEKT WNĘTRZ DWÓCH APARTAMENTÓW W NADBUDOWIE KAMIENICY
WSPÓŁPRACA PROJEKTOWA Z ALICJĄ HAJKOWICZ-RUDZKĄ
APARTAMENTY INWESTYCYJNE

ORAZ PROJEKT NADBUDOWY KLATKI SCHODOWEJ



INTERIOR DESIGN OF TWO APARTMENTS IN THE SUPERSTRUCTURE OF A TENEMENT BUILDING 
DESIGN COOPERATION WITH ALICJA HAJKOWICZ-RUDZKA 
INVESTMENT APARTMENTS

& THE STAIRCASE EXTENSION PROJECT



NADBUDOWA m²
MIESZKANIE   P43 A 120m²
MIESZKANIE   P43 B 100m²

2023-...

MIESZKANIE P43 A
APARTAMENT P43 B
Back to Top